1 2
 

Blokhut B43

€ 13.266,93 (inclusief btw 21%)

Heeft u interesse in dit product. Maak dan een afspraak voor naar de showroom te komen.

 

https://www.huisentuindroom.nl/contact-opnemen.html

u kunt hier contact opnemen of zelf een afspraak inplannen.

Liever zelf uw configuratie maken? ga onder in de pagina naar de configurator

Productbeschrijving

Het lijkt wel alsof deze blokhut uit het wilde westen komt. Of u hem als saloon gaat gebruiken, dat bepaalt u natuurlijk zelf. De oppervlakte van 22 m² is er in ieder geval groot genoeg voor.

De binnenruimte is ook heel geschikt als bijvoorbeeld hobbyruimte of relaxruimte. Het terras biedt voldoende ruimte om gezellig tijd door te brengen met uw vrienden of familie. Deze blokhut heeft dankzij de blokhut-constructie niet alleen een rustieke uitstraling, maar ook hoekverbindingen met een hoge wind- en waterdichtheid.

Productdetails
Artikelnummer B43
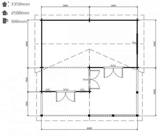
Breedte  600 cm (andere maten mogelijk)
Diepte  600 cm (andere maten mogelijk)
Oppervlakte 22,5 m²
Inhoud 69,7 m³
   
Wanddikte 44 mm (ook in 68 mm mogelijk)
Nokhoogte 335 cm
Wandhoogte 250 cm
Ramen  1x PE44, 2x PJ07
Deur(en) 3x PE45H
   
Daktype Zadeldak
Dakoverstek  30 cm
Palen 4 palen (12 x 12 cm)
Houtsoort Eersteklas vurenhout uit noordelijke landen (teruggedroogd tot 14 – 16 %)
Bouwsysteem Blokhut-systeem
 

Bouwtekening

Bekijk de bouwtekening (pdf).

Wij bieden meer

Daarnaast heeft u keuze uit vele extra’s:

Extra’s die u kunt bijbestellen

  • Andere ramen en/of deuren, keuze uit uitgebreid assortiment
  • Dikkere of hogere wanden
  • Een zolder
  • Hoogwaardige glasschuifwanden
  • Isolatie van vloer, wanden en/of dak

Bekijk alle opties van Lugarde.

Ook interessant

€ 2.189,44 € 2.488,00
€ 3.887,40
€ 4.193,20

Wij maken gebruik van cookies om onze website te verbeteren, om het verkeer op de website te analyseren, om de website naar behoren te laten werken en voor de koppeling met social media. Door op Ja te klikken, geef je toestemming voor het plaatsen van alle cookies zoals omschreven in onze privacy- en cookieverklaring.