1 2
 

Veranda VSV02

€ 5.432,39 (inclusief btw 21%)

Heeft u interesse in dit product. Maak dan een afspraak voor naar de showroom te komen.

 

https://www.huisentuindroom.nl/contact-opnemen.html

u kunt hier contact opnemen of zelf een afspraak inplannen.

Liever zelf uw configuratie maken? ga onder in de pagina naar de configurator

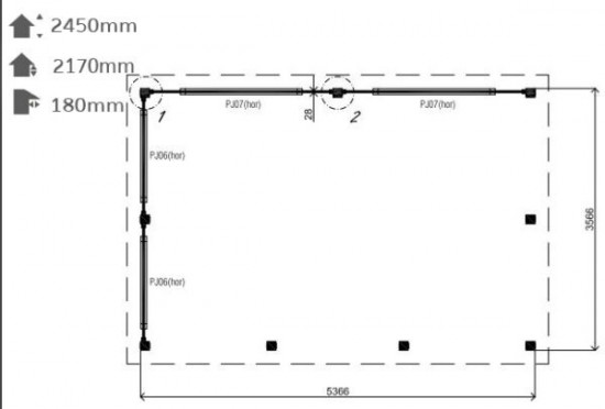
Klassiek, slank en toch indrukwekkend is deze veranda met plat dak. Door de twee open en twee gesloten wanden kan deze veranda op veel verschillende manieren worden gebruikt. Deze veranda heeft standaard een 44 mm wanddikte en is maar liefst 540 cm breed.

Productdetails
Artikelnummer VSV02
Breedte  540 cm (andere maten mogelijk)
Diepte  360 cm (andere maten mogelijk)
Wanddikte 44 mm
   
Hoogte 245 cm
Hoogte tot boei 217 cm
Ramen 2x PJ06, 2x PJ07 (excl. ventilatierooster)
Daktype Plat dak
   
Dakoverstek 18 cm
Palen 8 palen (12 x 12 cm)
Houtsoort Eersteklas vurenhout uit noordelijke landen (teruggedroogd tot 14 – 16 %)
Bouwsysteem Prima 3 = 1 systeem
 

Bouwtekening

Bekijk de bouwtekening (pdf).

Wij bieden meer

Lugarde gaat net een stapje verder dan anderen. Onze producten zijn standaard zeer compleet uitgerust, zoals u kunt zien bij ‘Kies opties voor uw vrijblijvende prijsopgave’. Ook onderstaande punten zijn inbegrepen in de prijs. Daarnaast heeft u keuze uit vele extra’s:

Voordelen inbegrepen in de prijs

  • Palen inclusief schoren en metalen voeten
  • Hoogwaardig vurenhout uit het noorden
  • 5 jaar garantie
  • En nog veel meer…

Bekijk alle standaard voordelen van Lugarde.

Extra’s die u kunt bijbestellen

  • Hogere of dikkere wanden
  • Extra wanden (voor beschutting tegen wind)
  • Balustrades (kruisdesign of verticaal design)
  • Keuze uit twee decoratieve sokkels
  • Glasschuifwanden

Bekijk alle opties van Lugarde.

Ook interessant

€ 2.189,44 € 2.488,00
€ 3.887,40
€ 4.193,20

Wij maken gebruik van cookies om onze website te verbeteren, om het verkeer op de website te analyseren, om de website naar behoren te laten werken en voor de koppeling met social media. Door op Ja te klikken, geef je toestemming voor het plaatsen van alle cookies zoals omschreven in onze privacy- en cookieverklaring.