1 2
 

Blokhut VSB10

€ 12.030,00 (inclusief btw 21%)

Heeft u interesse in dit product. Maak dan een afspraak voor naar de showroom te komen.

 

https://www.huisentuindroom.nl/contact-opnemen.html

u kunt hier contact opnemen of zelf een afspraak inplannen.

Liever zelf uw configuratie maken? ga onder in de pagina naar de configurator

Het grote terras aan de voorkant van deze blokhut is de ideale plek om in de zomer op een schommelbank te genieten van een lekker drankje.

Maar u kunt er natuurlijk ook een zitgroep plaatsen om gezellig samen buiten koffie of thee te drinken. De blokhut zelf heeft een oppervlakte van 22 m² en is door de twee ingangen ideaal om ingedeeld te worden in twee ruimtes. Denk bijvoorbeeld aan kantoorruimtes of slaapkamers voor gasten. Maar ook een grote muziekkamer, hobbyruimte of sportruimte behoort tot de mogelijkheden.

Hoe u deze blokhut ook inricht, hij is wind- en waterdicht dankzij onze speciale blokhut-constructie.

Productdetails
Artikelnummer VSB10
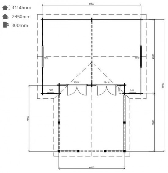
Breedte  600 cm (andere maten mogelijk)
Diepte  800 cm (andere maten mogelijk)
Oppervlakte 22 m²
Inhoud 62,5 m³
   
Wanddikte 44 mm (ook in 68 mm mogelijk)
Nokhoogte 315 cm
Wandhoogte 245 cm
Ramen  2x PE40, 2x PJ07
Deur(en) 2x PE41H
   
Daktype Zadeldak
Dakoverstek  30 cm
Palen 6 palen (12 x 12 cm)
Houtsoort Eersteklas vurenhout uit noordelijke landen (teruggedroogd tot 14 – 16 %).
Bouwsysteem Blokhut-systeem
 

Bouwtekening

Bekijk de bouwtekening (pdf).

Wij bieden meer

Lugarde gaat net een stapje verder dan anderen. Onze producten zijn standaard zeer compleet uitgerust, zoals u kunt zien bij ‘Kies opties voor uw vrijblijvende prijsopgave’. Ook onderstaande punten zijn inbegrepen in de prijs. Daarnaast heeft u keuze uit vele extra’s:

Voordelen inbegrepen in de prijs

  • Palen, deuren en ramen zijn gelamineerd. Dit voorkomt kromtrekken
  • Deuren met driepuntssluiting (SKG-keurmerk)
  • Metalen nokafdekking voor zadeldaken
  • Hoogwaardig vurenhout uit het noorden
  • 5 jaar garantie

Bekijk alle standaard voordelen van Lugarde.

Extra’s die u kunt bijbestellen

  • Andere ramen en/of deuren, keuze uit uitgebreid assortiment
  • Dikkere of hogere wanden
  • Een zolder
  • Hoogwaardige glasschuifwanden
  • Isolatie van vloer, wanden en/of dak

Bekijk alle opties van Lugarde.

Ook interessant

€ 2.189,44 € 2.488,00
€ 3.887,40
€ 4.193,20

Wij maken gebruik van cookies om onze website te verbeteren, om het verkeer op de website te analyseren, om de website naar behoren te laten werken en voor de koppeling met social media. Door op Ja te klikken, geef je toestemming voor het plaatsen van alle cookies zoals omschreven in onze privacy- en cookieverklaring.